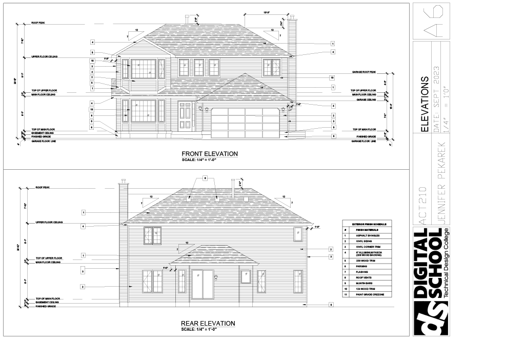
This Project taught me the ins and outs of Auto Cad 2D. Re-creating this blue print project took time but in the end left me feeling comfortable on how to work within the confines of Auto Cad 2D. The gallery below showcases the blue prints of a custom home which was created according to my instructors requirements.









